076a 变化舞台 Changing scenery 




︎                        ︎


南面的生活

在背景前

北面的生活

在舞台上




团队/TEAM


设计团队 Design Team

邢腾
Teng Xing


施工图团队 CD Drawing


张颖鹤
Yinghe Zhang


信息/STATUS


概念设计
Concept Design
05.2023-09.2023

施工图
Construction Drawing
08.2023-12.2023

施工
Under Construction
10.2023-


面积/AREA


40sqmx10units






客房效果图 Renders




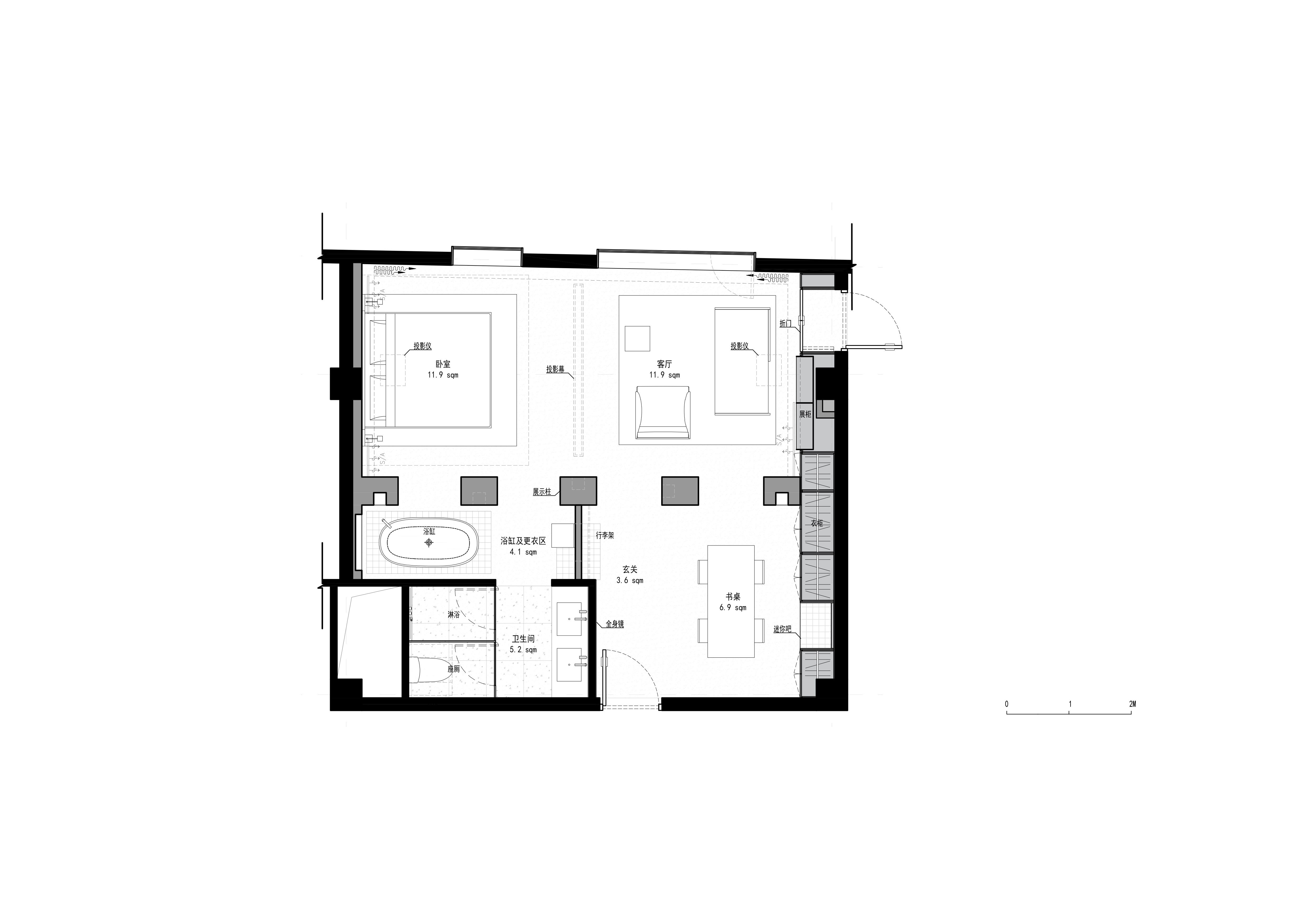
客房平面图 Plan of rooms


施工照片 Construction photos

MAY 2023

INTERIOR

︎                    ︎