074 两种色彩 Two colors 




︎                        ︎

最后一道弯
银色大窗前
葡萄架子下

原始灰墙面
黄色大门后
红砖院子中

颜色
从褶皱中
窜出

光线
由缝隙处
渗入



团队/TEAM


邢腾
Teng Xing

王播夏
Boxia Wang



合作/COLLABORATOR


朱宣橙
Xuancheng Zhu


 

信息/STATUS


概念设计
Concept Design
04.2023-05.2023

施工图
Construction Drawing
05.2023

施工
Construction
05.2023-07.2023

建成
built


面积/AREA


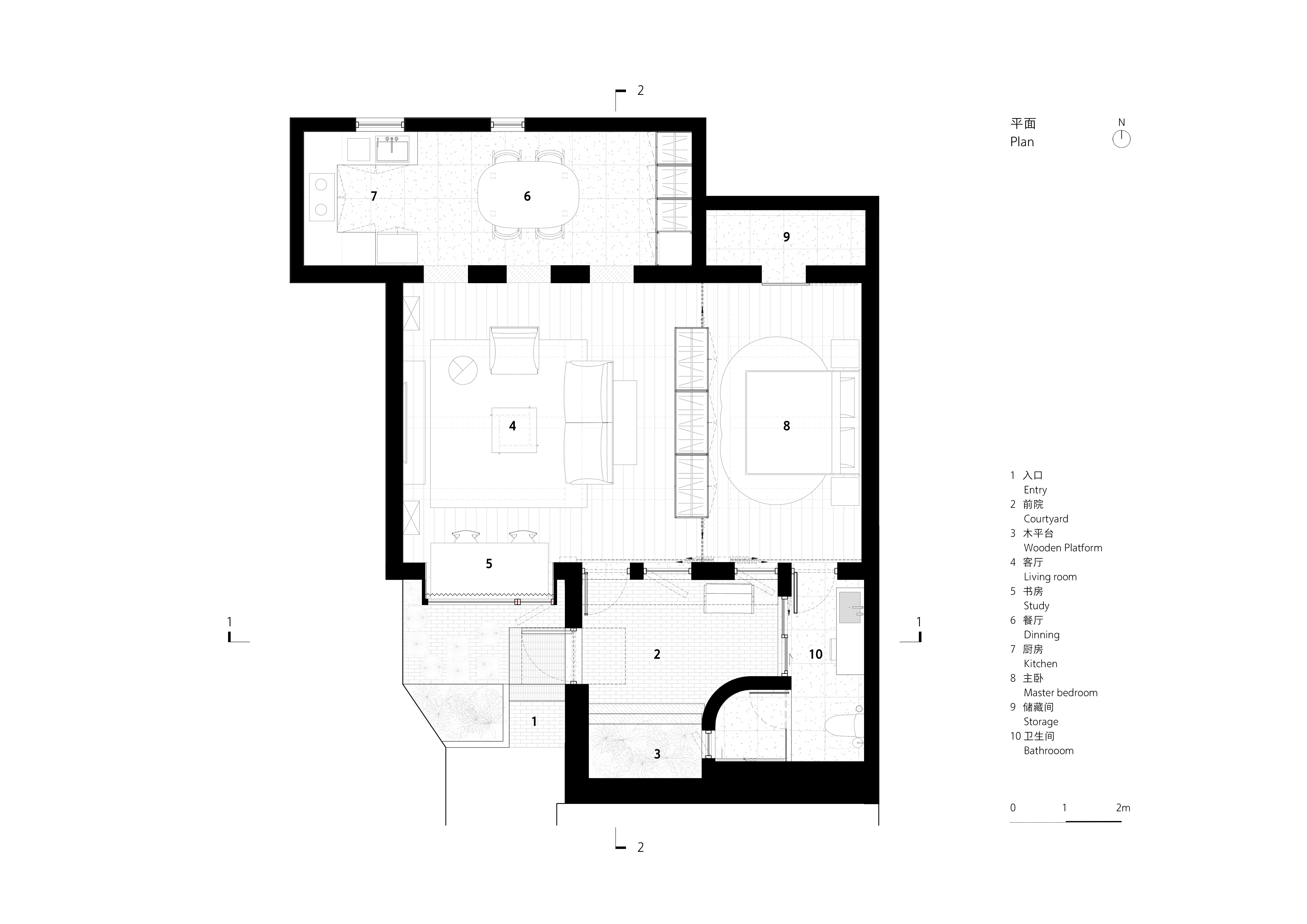
70sqm


入口 The entry
红 The red
灰 The grey
  细部 Details


分析图 Diagram


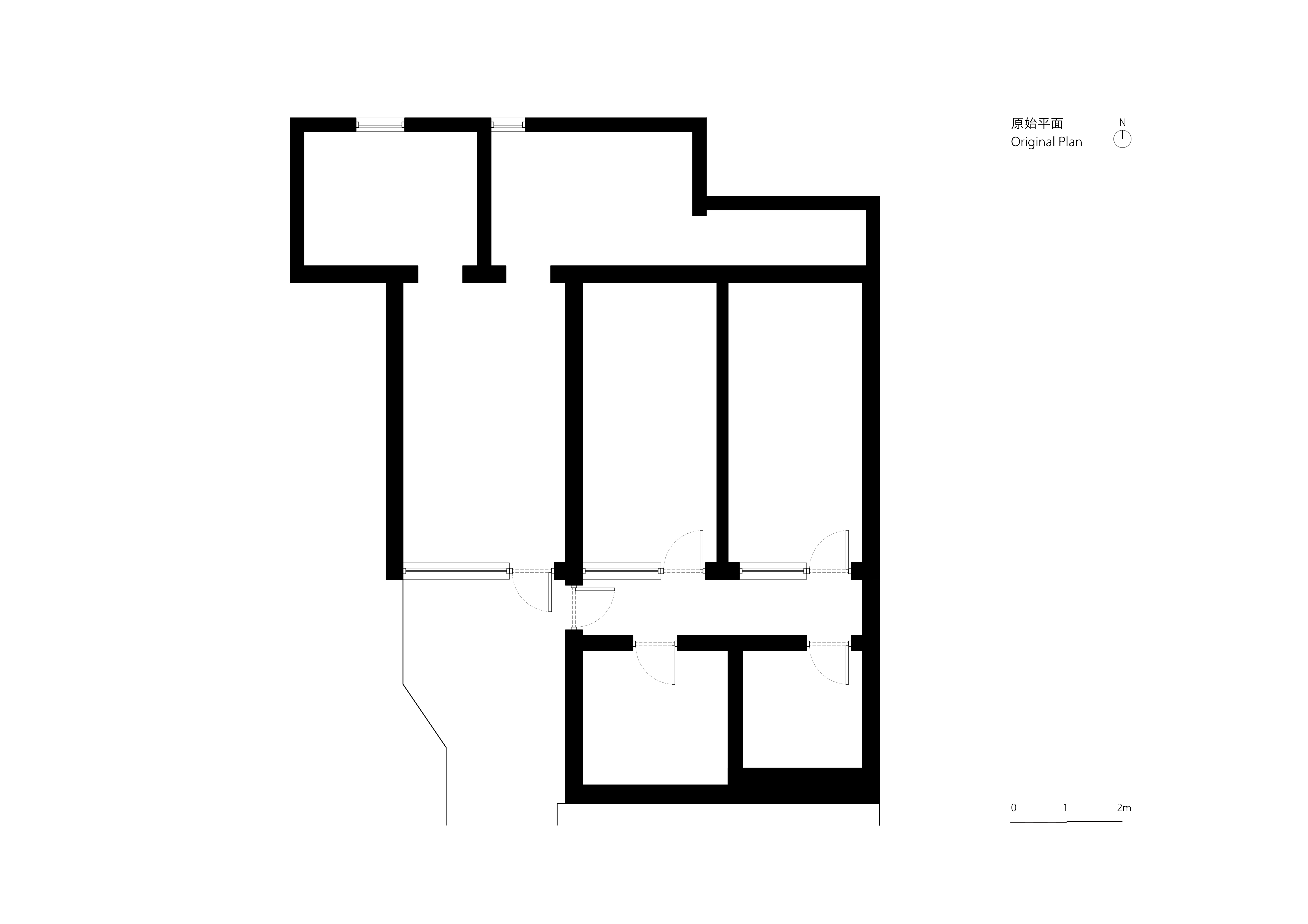
图纸 Drawings

施工照片 Construction Photos

APR 2023

ARCHITECTURE

︎                    ︎