063 探境 A trip 




︎                        ︎

闹市街旁
深巷

巷子端头
中庭

庭院角落
枣树

树干跟前
台阶

阶梯之上
阳光


团队/TEAM


邢腾
Teng Xing

王播夏
Boxia Wang


合作/COLLABORATOR


朱宣橙
Xuancheng Zhu


信息/STATUS


概念设计
Concept Design
03.2023-06.2023


面积/AREA


190sqm



效果图 Renders



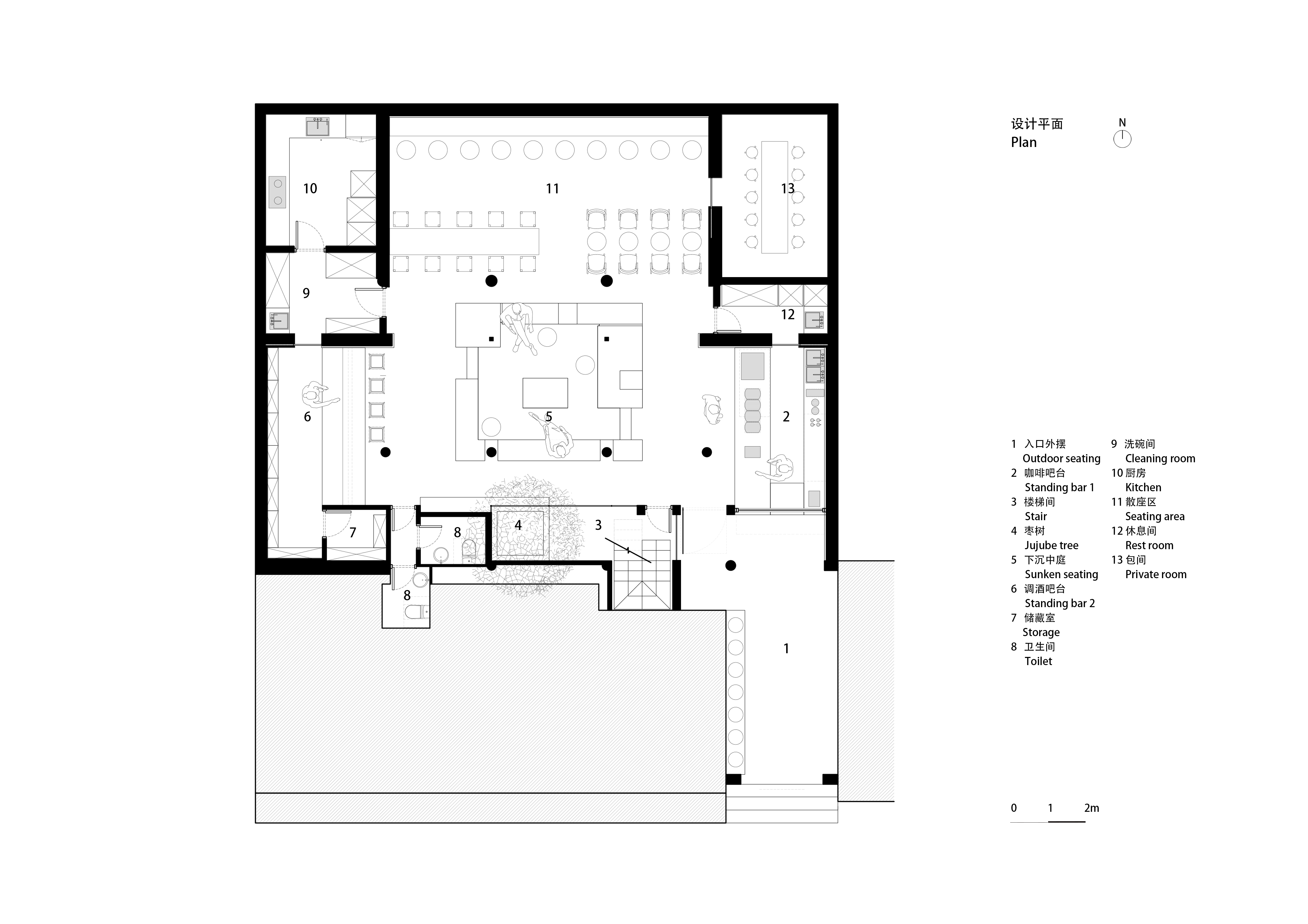
平面图 Drawings

FEB 2023

INTERIOR

︎                   ︎